Як має виглядати Театр на Андріївському узвозі. Оприлюднено проект

Як має виглядати Театр на Андріївському узвозі. Оприлюднено проект

Як виявилося, нова будівля Театру на Подолі не нагадуватиме чорний куб

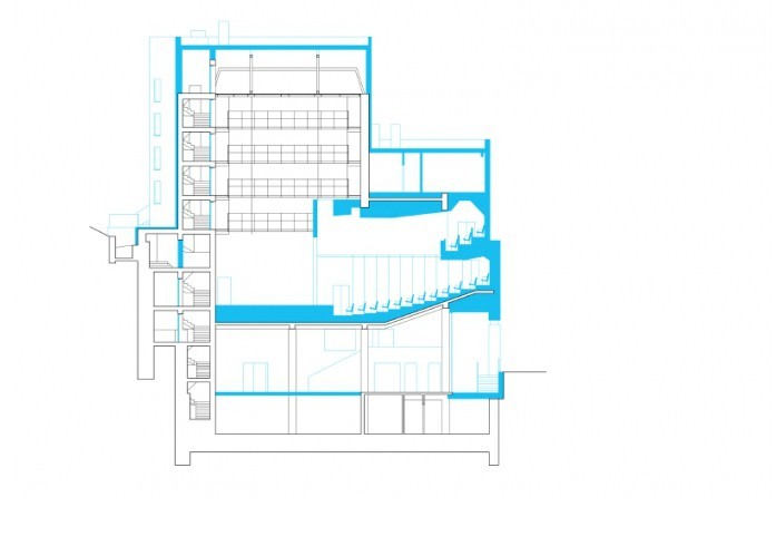
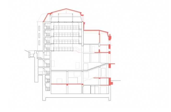
Архітектор Олег Дроздов, який працював над проектом нової будівлі «Театру на Подолі» оприлюднив свій справжній проект.

Як видно на сайті автора, ця будівля відрізняється від того, через який сьогодні трапився скандал у соцмережах. 

Нагадаємо, сьогодні користувачів соціальних мереж обурив фасад нової будівлі Київського драматичного театру на Подолі, яку звели на Андріївському узвозі і мають відкрити у вівторок.

Будівлю вже назвали «крематорієм» та «саркофагом». 

Зазначимо, що меценатом, який дав гроші на добудову, є корпорація «Рошен».

Відомо, що робота над будівлею триватиме до літа 2017 року. 


Коментарі — 0

Авторизуйтесь , щоб додавати коментарі
Іде завантаження...
Показати більше коментарів