«Тропический» офис в Утрехте: как проектировать современные рабочие места

dezeen.com

Офисы с отдельными кабинетами ушли в прошлое - и новым стандартом стали open space

Архитектурная студия Space Encounters разработала зонирования офиса в Утрехте, Нидерланды, с помощью живых тропических растений.

Архитекторы отмечают, что закрытый тип офисов с отдельными кабинетами ушел в прошлое и новым стандартом стали опен-спейс. В то же время много открытого пространства тоже может быть дискомфортным.

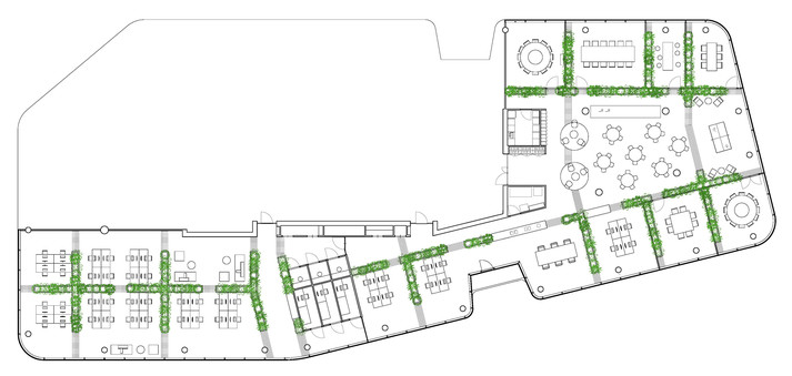
Работая над интерьером офиса компании Synchroon, который занимает 14-й этаж небоскреба в центре города, планировщики пытались найти оптимальный вариант, не вызывает ни клаустрофобией, ни агорафобией.

«Распределение и иерархия определенных зон способствуют комфорту, однако если пространство разделено слишком, тогда жертвуем атмосферой открытости», - говорят архитекторы.

Офис зонировали с помощью стен высотой один метр. Их облицевали белой плиткой с зелеными швами. Внутри стены наполнены почвой, в которые высадили более 750 тропических растений. Таким образом растения формируют живую изгородь между работниками различных отделов компании.

Зонирование усилили использованием различных типов мебели. Белые, более формальные стулья и столы расположены на рабочих местах, в то время как бежевые диваны, пуфы и мягкие стулья обозначают общие зоны.

Несколько лет назад студия Space Encounters использовали подобное буйное озеленения при проектировании интерьера офиса в Амстердаме. Фактически они превратили стеклянные переговорные комнаты на оранжерею.

Коментарі — 0

Авторизуйтесь , щоб додавати коментарі
Іде завантаження...
Показати більше коментарів